客戶資料:長春某汽車零部件公司
客戶需求:這次我們的客戶是一家位于長春的生產汽車零部件的公司,該公司主要的業務是對一些汽車的改裝工作,制造汽車的零部件還有一些汽車設備的制造。我們都知道,汽車上需要用到的零部件工藝都是非常精細的,一個零件往往需要有很多的步驟,而且零件的數量有非常大。在加上現在越來越多的人擁有汽車,零件的需求量也慢慢的變大,以前人工存取的工作模式很明顯在工作效率上已經沒辦法跟上企業的生產需求,為了能夠提升倉庫的運營速度,該公司的采購人員聯系到了我們蘇州柯瑞德公司。
合作項目:自動化立體庫

自動化立體庫(一)
項目實施:當該公司的采購人員聯系到我們的時候,我們立刻安排了銷售人員去了解實際情況。在知道了該企業倉庫情況和企業的目的之后,我們的銷售人員為客戶推薦了自動化立體庫這款倉儲貨架。起初客戶還不了解什么是自動化立體庫,但是在我們銷售人員耐心的解釋之下,客戶決定采用自動化立體庫來改善倉庫。根據銷售人員給出的資料,考慮到該企業倉庫空間比較大,我們為企業設計的立體庫一共用到了3個堆垛機,這樣就能夠最大化的提升整個倉庫的貨物存取運輸效率。

自動化立體庫(二)
方案圖紙:

自動化立體庫平面圖

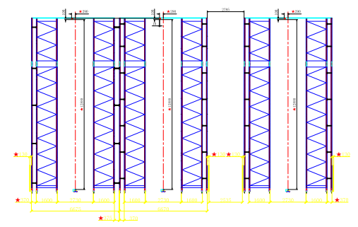
自動化立體庫立面圖(一)

自動化立體庫立面圖(二)
項目總結:自動化立體庫比傳統的貨架更復雜,為了確保在安裝貨架時遇到問題能夠第一時間解決,我們蘇州柯瑞德安排了專業的技術人員在現場進行指揮。該項目已經與7月17日正式完工,經過調試之后已經正式投入到使用當中,客戶也表示非常的滿意,達到了他們想要的效果。
更多閱讀: