該企業客戶從網上看到我們公司發布的產品信息,進行多方了解后,打算讓我們公司為其新建的倉庫進行密集柜貨架的供應及安裝。但經過我們的技術人員現場勘察,多方考慮后,覺得閣樓的存儲方式對客戶更有利。最終,我們的專業打動了客戶,成功推薦客戶采用了中B閣樓的存儲方式。
| 客戶資料 | 合作項目 |
|
蘇州園區某制造企業 |
客戶是一家集研發、生產、銷售為一體的制造型企業,隨著企業影響力的擴大,企業規模也不斷擴大,以前的倉庫已經滿足不了他們的存儲需求,其新建的手動存取倉庫急需完善的規劃方案,要求在方便管理的基礎上,提高倉庫空間利用率,解決配件存儲需求。

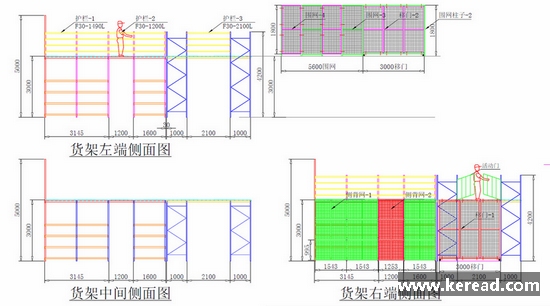
圖紙一

圖紙二
盡管是與該客戶第一次合作,但客戶非常配合,給予我們最大的信任。最終,我們確實沒有讓客戶失望,我們的出方案速度、報價速度,還是安裝速度,都是最快的。目前,為期15天的安裝工程已經結束。

圖一

圖二

圖三
當全新的倉庫展示在客戶面前時,客戶表示,當初選擇我們推薦的方案是對的,新建倉庫比他們預期的還要完美,并表示,后期有機會還愿與我們合作。
滿足客戶提出的要求,我們義不容辭,但以更專業、完善的倉庫規劃方案,幫客戶解決倉儲難題才是我們的最終追求。雖然用方案打動新客戶不是頭一次,但我們依然很開心。日后,我們定當再接再厲,不斷嘗試、總結、創新,以完善的倉庫規劃方案服務更多客戶。
更多案例:
南通中型貨架項目,帶動其他產品的熱銷
蘇州貨架項目:重型貨架讓混亂的倉庫煥然一新
浙江貨架:重型貨架為減速離合器制造業增添砝碼